Разработка проектной и сметной документации для строительства комплекса по производству ферросплавов
calendar_today
Объект: Аксуйский электрометаллургический завод. г. Аксу, Павлодарская область Состав работ: Разработка ПСД с использованием BIM технологий с прохождением государственной экспертизы
Может быть интересно
arrow_forward
Реконструкция участков 2 и 3 реки Есиль в Астане, протяженностью 8 км
arrow_forward
Работы по укреплению берегов на участке реки Урал протяженностью 4,5 км в селе Махамбет Атырауской области
Состав работ: - Разработка ПСД с прохождением государственной экспертизы, с применением новых технологий - габионных конструкций ROCK BOX, а также шпунтов AZ 18-800 - Авторский надзор
arrow_forward
Разработка проектно-сметной документации для восстановления газопроводов на Центрально-тепловой электростанции АО «АМТ»
arrow_forward
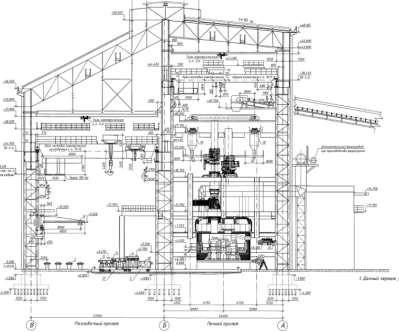
Модернизация главного здания Балхашского обогатительного завода
Создание информационной 3D модели на основании сформированного облака точек Расчет КМ, КЖ конструкции на основании информационной модели на базе ПО ЛИРА сапр Построение рабочей модели с последующим формирование и выдачей рабочей документации 2D Построение совмещенной 3D модели согласно предоставляемых смежных разделов разрабатываемых поставщиком оборудования BIM сопровождение проекта
arrow_forward
Сканирование горизонтальных подземных выработок (на глубине более 500 м) АО «Казахалтынское горно-металлургическое предприятие», рудник Жолымбет
Состав работ: Подсчет объемов выработок шахты Облако точек в формате .pts, 3D Mesh модель в формате .dxf. Облако точек в формате .pts, 3D Mesh модель, расчет объема модели
arrow_forward