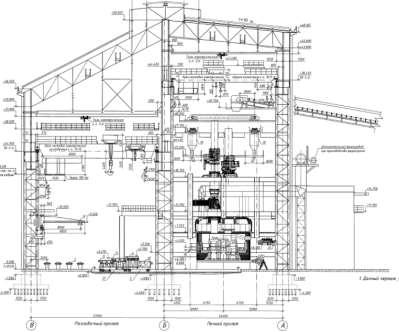
Facility: Aksu Electrometallurgical Plant, Aksu, Pavlodar
Region
Scope of work: Development of design estimates using BIM technologies with
state examination
Facility: Aksu Electrometallurgical Plant, Aksu, PavlodarRegion Scope of work: Development of design estimates using BIM technologies withstate examination
Facility: Aksu Electrometallurgical Plant, Aksu, Pavlodar
Region
Scope of work: Development of design estimates using BIM technologies with
state examination
Whether you have a question, a partnership proposal, or an interest in joining our team, select the relevant category below, and we’ll direct you to the right form.
Оставьте заявку на обратный звонок и мы Вам перезвоним