+7 (717) 263-62-23 — Біз байланыстамыз. Контакты
+7 (717) 263-62-23 Кері байланыс

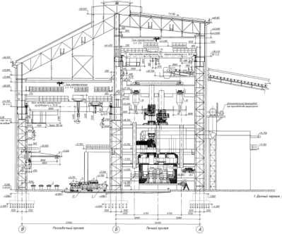
Ферроқорытпа өндірісі кешенін салу үшін жобалау-сметалық құжаттаманы әзірлеу

Ферроқорытпа өндірісі кешенін салу үшін жобалау-сметалық құжаттаманы әзірлеу
calendar_today

Объект: Аксуйский электрометаллургический завод. г. Аксу, Павлодарская область Состав работ: Разработка ПСД с использованием BIM технологий с прохождением государственной экспертизы

Нысан: Ақсу электрометаллургиялық зауыты, Ақсу, Павлодар
облысы

Жұмыс көлемі:
Мемлекеттік сараптамамен BIM технологияларын қолдана отырып, жобалық-сметалық құжаттаманы әзірлеу

Қызықты болуы мүмкін

arrow_forward

Астанадағы Есіл өзенінің ұзындығы 8 км болатын 2 және 3 учаскелерін қайта жаңарту

Жұмыс көлемі: -Өзен арнасын экскаватормен тереңдету-Қаптармен және Ларсен шпунт қадаларымен жағалауды тұрақтандыру-Гидравликалық құрылыстарды салу
arrow_forward

Атырау облысындағы Махамбет ауылындағы Жайық өзенінің 4,5 км ұзындығындағы жағалауды қорғау жұмыстары

Состав работ: - Разработка ПСД с прохождением государственной экспертизы, с применением новых технологий - габионных конструкций ROCK BOX, а также шпунтов AZ 18-800 - Авторский надзор
arrow_forward

«АМТ» АҚ Орталық жылу электр орталығында газ өткізгіштерін қалпына келтіру бойынша жобалау-сметалық құжаттаманы әзірлеу

arrow_forward

Балқаш байыту зауытының бас ғимаратын жаңғырту

-Жасалған нүктелік бұлт негізінде 3D ақпараттық модельді құру -LIRA-SAPR бағдарламалық жасақтамасынанегізделген ақпараттық модель негізінде KM, KZh құрылымын есептеу -Кейіннен генерациялау және 2D жұмыс құжаттамасын шығару арқылы жұмыс моделін құру -Жабдық жеткізушісі ұсынған тиісті бөлімдерге сәйкес біріктірілген 3D модельді құру -BIM жобасын қолдау
arrow_forward

«Қазақалтын» тау-кен металлургиялық компаниясы» АҚ, Жолымбет кенішінің көлденең жер асты жұмыстарын (500 м-ден астам тереңдікте) сканерлеу

Жұмыс көлемі:Кен жұмыстарының көлемін есептеу. .pts форматындағы нүктелік бұлт,.dxf форматындағы 3D тор моделі. .pts форматындағы нүктелік бұлт, 3D тормоделі, модель көлемін есептеу
arrow_forward

Хромтаудағы Донской тау-кен байыту комбинатының өткізгіш білігінің сканерлеу және 3D модельдеу

Біліктің қатты бағыттаушы өткізгіштерінің геометриялық параметрлерін басқару жәнеөткізгіштердіңнақты геометриялық параметрлерін, конфигурациясын жәнеөткізгіштің бүкіл ұзындығы бойынша орналасуын көрсететін жоғары дәлдіктегі 3D моделін құру бойынша жұмыс..pts форматындағы нүктелік бұлт, .dxf форматындағы 3D торлы модель,жобалау деректеріне қабаттасқан 4,5 м аралықтағы (1 деңгейлі) біліктің көлденең қималары,өткізгіш конфигурациясының жобалауорнынан ауытқуларын талдау. Әрбір деңгей үшін туралау тапсырмасын мм-мен көрсететін сызбалар жиынтығы